El Dorado
Some plans may be shown with available options & upgrades illustrated.
El Dorado
Some plans may be shown with available options & upgrades illustrated.
Details
- 4 Bedrooms
- 2 Bathrooms
- 0 Garage
- 1405 SQ/FT
- 4
- 2
- 0
- 1405 SQ/FT
Description
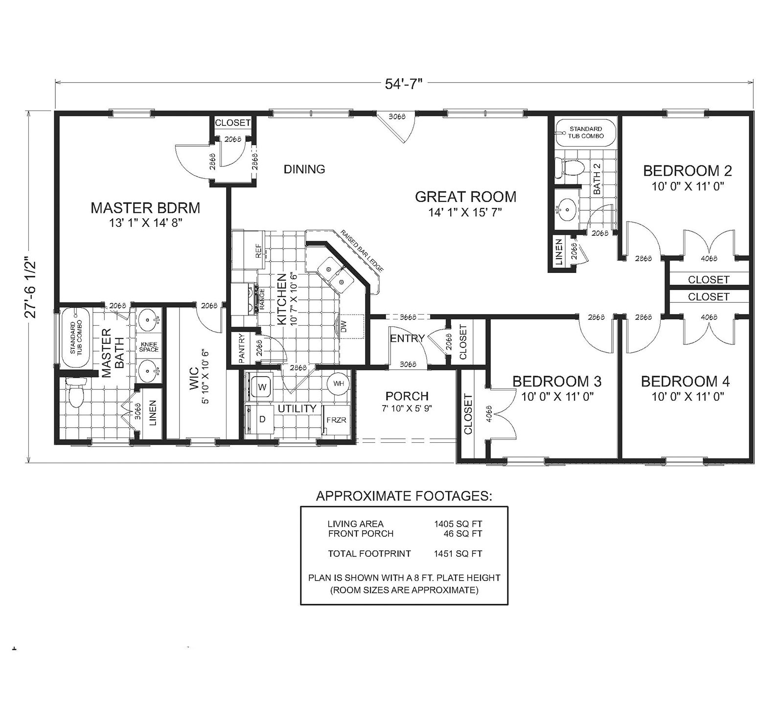
The El Dorado floor plan offers a thoughtfully designed layout that combines modern efficiency with welcoming comfort. Spanning approximately 1,405 square feet of living space, this single-story home is ideal for growing families or those seeking a well-balanced design with room to relax and entertain.
At the heart of the home lies the open-concept great room, seamlessly connected to the dining area and kitchen. The kitchen’s convenient bar seating and corner pantry make it both stylish and practical, perfect for family gatherings or casual meals.
The master suite serves as a peaceful retreat, featuring a spacious bedroom, a luxurious en suite bath with double vanities, a soaking tub, and a separate shower. A large walk-in closet provides ample storage and easy access to the adjoining utility room for added convenience.
Three additional bedrooms are thoughtfully placed on the opposite side of the home, ensuring privacy for everyone. Each bedroom includes a generous closet, and they share a full bathroom with a standard tub and linen storage.
Additional highlights include a welcoming covered front porch, a dedicated utility room with washer and dryer space, and well-positioned closets throughout for optimized organization.
Compact yet remarkably efficient, The El Dorado delivers everything today’s homeowners desire-style, comfort, and smart design—all in a footprint that fits beautifully in any neighborhood or rural setting.
Gallery
Floor Plan
Our Custom Home Standard Features
Kitchen & Bath Features
- Crown Molding Accents over cabinetry
- Granite countertops in kitchen with tile backsplash
- 8' Stainless Steel sink
- Delta faucets
- All Plywood Cabinets with European concealed hinges with soft close drawers
- Granite countertops & backsplash in bathrooms with recessed bowl
Interior Features
- Multiple Interior door styles
- 3 ¼in.Base Trim
- Orange peel textured walls & ceilings
- 200 amp Electrical Service
- Smoke detectors with battery backup
- Designer Interior Door Hardware
- Stainguard Carpet with 5# 3/8" re-bond pad
- 2 Phone Outlets (Cat 5)
- 2 Cable Outlets (RG 6)
- Wiring/Bracing with Ceiling Fans in all bedrooms and family/great room
- Complete lighting package with a choice of popular finishes
- Ceramic tile in foyer, kitchen, utility and bath (wet areas), per plan
Exterior Features
- Fiber Cement siding & soffits
- Shutters per plan
- 30 yr. Architectural Shingles
- Deadbolts on all entrance doors
- Weatherproof GFI Exterior outlets at all exterior doors
- 3 Exterior Hose bibs
Energy Saving Features
- R-38 Blown Ceiling Insulation
- R- 13 Exterior Wall Insulation
- Continuous Vented Fiber Cement soffit
- Ridge Vents for Proper Ventilation
- High Efficiency 14 seer A/C system
- Programmable Wi-Fi capable Display Thermostat
- Vinyl, Double pane Low-E windows
- Clothes dryer vented to outside
- Fiberglass Insulated Exterior Doors
- Energy Efficient 50 gallon water heater
Construction Features
- Engineered Post Tension Concrete Slab
- Engineered Frame Construction to IRBC code
- Full OSB exterior with House wrap
- Bora-Care Termite Treatment
- OSB Roof Decking or equivalent
