Hillsboro C
Some plans may be shown with available options & upgrades illustrated.
Hillsboro C
Some plans may be shown with available options & upgrades illustrated.
Details
- 3 Bedrooms
- 2 Bathrooms
- 2 Garage
- 2051 SQ/FT
- 3
- 2
- 2
- 2051 SQ/FT
Description
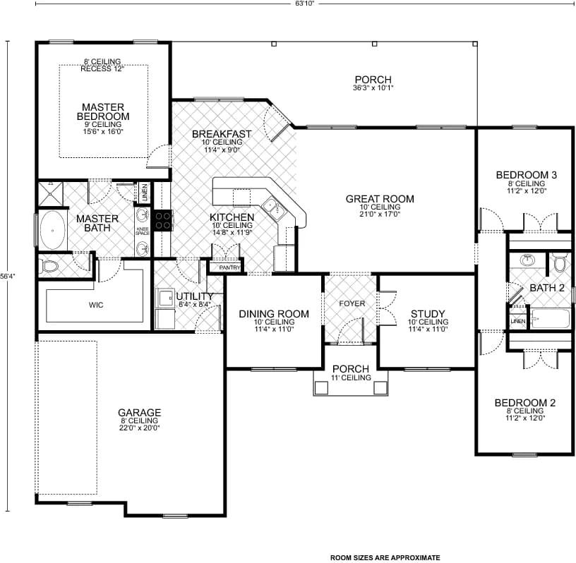
The Hillsboro C floor plan is a beautifully crafted layout, ideal for those looking to build a custom home that combines functional design with aesthetic appeal. The plan features a sprawling porch leading into a welcoming foyer, which then opens up to a spacious great room with a 10-foot ceiling—perfect for hosting guests or enjoying family time.
The kitchen, thoughtfully situated at the heart of the home, boasts a pantry and a sizable island that overlooks the breakfast area, ensuring meals are a communal and inviting experience. The formal dining room, with its own elegant ceiling design, offers a dedicated space for sit-down meals.
The master suite is a luxurious retreat, with a tray ceiling in the bedroom for added depth and style, a lavish master bath, and a walk-in closet. The home also includes two additional bedrooms, each with easy access to a full bathroom, ensuring comfort and privacy for all inhabitants.
A utility room provides practical space for household management, while a study offers the flexibility to serve as a home office, library, or extra bedroom. With a living area totaling 2,051 square feet, this floor plan is an excellent canvas for creating a home that’s as cozy as it is sophisticated, offering a seamless blend of public and private spaces to cater to any lifestyle.
Gallery
Floor Plan
Our Custom Home Standard Features
Kitchen & Bath Features
- Crown Molding Accents over cabinetry
- Granite countertops in kitchen with tile backsplash
- 8' Stainless Steel sink
- Delta faucets
- All Plywood Cabinets with European concealed hinges with soft close drawers
- Granite countertops & backsplash in bathrooms with recessed bowl
Interior Features
- Multiple Interior door styles
- 3 ¼in.Base Trim
- Orange peel textured walls & ceilings
- 200 amp Electrical Service
- Smoke detectors with battery backup
- Designer Interior Door Hardware
- Stainguard Carpet with 5# 3/8" re-bond pad
- 2 Phone Outlets (Cat 5)
- 2 Cable Outlets (RG 6)
- Wiring/Bracing with Ceiling Fans in all bedrooms and family/great room
- Complete lighting package with a choice of popular finishes
- Ceramic tile in foyer, kitchen, utility and bath (wet areas), per plan
Exterior Features
- Fiber Cement siding & soffits
- Shutters per plan
- 30 yr. Architectural Shingles
- Deadbolts on all entrance doors
- Weatherproof GFI Exterior outlets at all exterior doors
- 3 Exterior Hose bibs
Energy Saving Features
- R-38 Blown Ceiling Insulation
- R- 13 Exterior Wall Insulation
- Continuous Vented Fiber Cement soffit
- Ridge Vents for Proper Ventilation
- High Efficiency 14 seer A/C system
- Programmable Wi-Fi capable Display Thermostat
- Vinyl, Double pane Low-E windows
- Clothes dryer vented to outside
- Fiberglass Insulated Exterior Doors
- Energy Efficient 50 gallon water heater
Construction Features
- Engineered Post Tension Concrete Slab
- Engineered Frame Construction to IRBC code
- Full OSB exterior with House wrap
- Bora-Care Termite Treatment
- OSB Roof Decking or equivalent
