Whitley
Some plans may be shown with available options & upgrades illustrated.
Whitley
Some plans may be shown with available options & upgrades illustrated.
Details
- 3 Bedrooms
- 2 Bathrooms
- 0 Garage
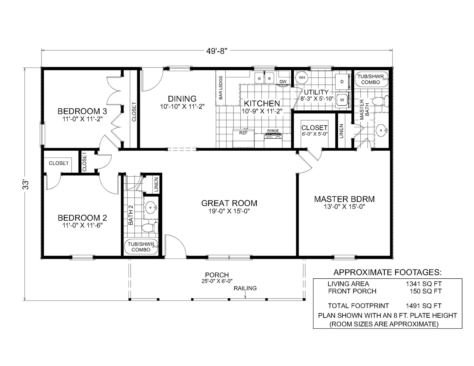
- 1491 SQ/FT
- 3
- 2
- 0
- 1491 SQ/FT
Description
This thoughtfully designed floor plan offers a comfortable and efficient layout that blends open-concept living with well-defined private spaces, making it ideal for modern living on any homesite. The welcoming front porch leads into a spacious great room that serves as the central gathering space, perfect for everyday relaxation or entertaining guests. Its open flow creates a natural connection to the dining area and kitchen, enhancing both functionality and livability.
The kitchen is centrally positioned and designed for efficiency, featuring ample counter space, a convenient breakfast bar, and easy access to the adjacent dining area. A nearby utility room adds everyday practicality with space for laundry and additional storage, keeping household tasks neatly organized and out of sight.
The private master bedroom is thoughtfully separated from the secondary bedrooms, creating a peaceful retreat at the end of the day. It offers generous space for a full bedroom set and is complemented by a dedicated closet and an en-suite bath designed for comfort and convenience. Two additional bedrooms are located on the opposite side of the home, each offering comfortable dimensions and closet space, with easy access to a shared full bath.
Additional highlights include efficient storage throughout, a functional layout that maximizes every square foot, and a covered front porch that enhances curb appeal while providing a welcoming outdoor space. With approximately 1,341 square feet of living area and a well-balanced design, this floor plan delivers a smart combination of comfort, simplicity, and timeless appeal, making it an excellent foundation for a personalized custom home.
Gallery
Floor Plan
Our Custom Home Standard Features
Kitchen & Bath Features
- Crown Molding Accents over cabinetry
- Granite countertops in kitchen with tile backsplash
- 8' Stainless Steel sink
- Delta faucets
- All Plywood Cabinets with European concealed hinges with soft close drawers
- Granite countertops & backsplash in bathrooms with recessed bowl
Interior Features
- Multiple Interior door styles
- 3 ¼in.Base Trim
- Orange peel textured walls & ceilings
- 200 amp Electrical Service
- Smoke detectors with battery backup
- Designer Interior Door Hardware
- Stainguard Carpet with 5# 3/8" re-bond pad
- 2 Phone Outlets (Cat 5)
- 2 Cable Outlets (RG 6)
- Wiring/Bracing with Ceiling Fans in all bedrooms and family/great room
- Complete lighting package with a choice of popular finishes
- Ceramic tile in foyer, kitchen, utility and bath (wet areas), per plan
Exterior Features
- Fiber Cement siding & soffits
- Shutters per plan
- 30 yr. Architectural Shingles
- Deadbolts on all entrance doors
- Weatherproof GFI Exterior outlets at all exterior doors
- 3 Exterior Hose bibs
Energy Saving Features
- R-38 Blown Ceiling Insulation
- R- 13 Exterior Wall Insulation
- Continuous Vented Fiber Cement soffit
- Ridge Vents for Proper Ventilation
- High Efficiency 14 seer A/C system
- Programmable Wi-Fi capable Display Thermostat
- Vinyl, Double pane Low-E windows
- Clothes dryer vented to outside
- Fiberglass Insulated Exterior Doors
- Energy Efficient 50 gallon water heater
Construction Features
- Engineered Post Tension Concrete Slab
- Engineered Frame Construction to IRBC code
- Full OSB exterior with House wrap
- Bora-Care Termite Treatment
- OSB Roof Decking or equivalent
